レジデンスタワー上本町 3204号室 [No.764] NEWおすすめ







物件名 | レジデンスタワー上本町 3204号室 |
---|---|
所在地 | 大阪府大阪市天王寺区細工谷1-3-25 |
価 格 | 12,990万円 |
交通/最寄駅 | 近鉄大阪線・奈良線『大阪上本町』駅徒歩7分/ 大阪メトロ谷町線・千日前線『谷町九丁目』駅徒歩11分/ JR大阪環状線『鶴橋』駅徒歩11分 |
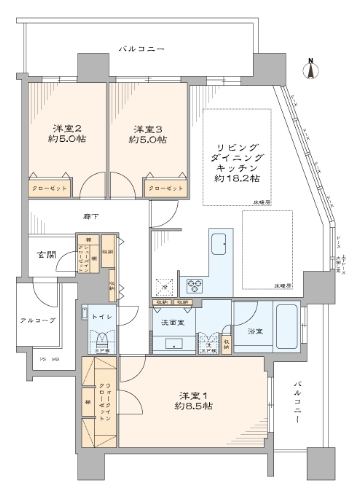
建物床面積 | 89.29 ㎡ |
間取り | 3LDK+WIC・SIC |
築年月 | 2009(平成21)年1月 |
構 造 | 鉄筋コンクリート造地上35階建32階部分 |
その他 | 空有(20,000~34,000円/月)、都市ガス・公営水道・本下水・EV・オートロック・宅配ボックス |
管理費 | 18,930円 |
修繕積立金 | 16,070円 |
詳細情報 | ◇地上35階建て大規模タワーレジデンス ◇令和4年共用部大規模修繕工事実施済み ◇35階建32階部分・北東角部屋 眺望良好 ◇ペット飼育可(規約細則あり、犬・猫合計2匹まで) |
こだわりアイコン |